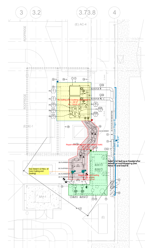
American Project Solutions (APS) has been awarded the boiler replacement project at Stanford Health Care’s 2589 Samaritan Drive facility, focused on upgrading the existing rooftop heating hot water system to improve reliability and long-term performance. During the pre-construction phase, APS is leading a detailed value engineering effort to optimize cost, constructability, and schedule while minimizing disruption to ongoing medical operations. By leveraging existing infrastructure—including boiler location, piping, electrical systems, and controls—APS has reduced the need for new construction, limited crane activity, and avoided invasive work within occupied spaces. This approach streamlines execution, lowers overall project cost, and ensures minimal impact to patients and staff. The project is currently in the final stages of value engineering and coordination, with construction scheduled to begin in the coming months.
Let’s discuss how our construction expertise can support your project’s specific requirements.
American Project Solutions (APS) is a Veteran Owned and Operated Consulting and Construction firm. We are committed to outstanding project management and delivery regardless of the scale or the intricacy of the work.
CA California License: #1111863 |
General Building – B
©2025 by American Project Solutions.
Website Disclaimer | Cookie Policy | SMS Privacy Policy | Privacy Policy